Добро пожаловать на http://vipplan.ru

Випплан Одинцово - это тысячи проектов домов в нашем каталоге!

Вы всегда сможете найти для себя проект дома вашей мечты! Даже если этого не случилось, мы готовы в любую минуту предложить проект индивидуального дома.

Забыли пароль?
Вы еще не регистрировались?

Перейдите по ссылке ниже на страницу регистрации.

Регистрация...

Внимание!!!

В проектную документацию могут быть внесены изменения любой сложности, в соответствии в Вашими пожеланиями!

Полезные статьи

Мероприятия по получению разрешения на строительство в Одинцове

Хотите построить дом в Одинцове? Не знаете с чего начать? Для начала, нужно заказать проект, а после получить разрешение на строительство. ...

Типы и разновидности кровли

Кровля состоит из сплошного настила, стяжки и обрешетки, поддерживающих стропила и несколько слоев изоляции, призванных уберечь кровельное пространство от негативного воздействия пара и влаги....

Проекты домов и коттеджей > Каталог проектов домов > Одноэтажный дом с мансардой, гаражом и подвалом Vg1326

Одноэтажный дом с мансардой, гаражом и подвалом Vg1326

Одноэтажный дом с мансардой, гаражом и подвалом
Зарегистрируйтесь

Проект № Vg1326


Техническое описание
Общая площадь: 250.47 м2
Жилая площадь: 104.72 м2
Высота здания: 9.32 м
Размеры дома: 12.08м×11.88м
Кол-во комнат: 5
Цокольный этаж: нет
Гараж: нет
Мансарда: есть

Kонструкция
Фундамент: Ленточный из блоков ФБС
Перекрытия: Деревянные
Материал стен: Газобетон

Архитектурный раздел
Конструктивный раздел
АР+КР - 64 000 (Со скидкой 20%)
Проект индивидуального одноэтажного жилого дома с размерами 12,08 x 11,88 м. Наружная отделка здания – облицовочный кирпич. Цоколь – клинкерная плитка Фундамент – ленточный, из блоков ФБС Наружные стены запроектированы из: газобетона, утеплителя и кирпича.. Внутренние стены и перегородки – из газобетона. Перекрытие межэтажное – по деревянным балкам с использованием тепло-шумоизоляционных материалов. Пол этажа – пол по грунту. Крыша - двухскатная. Материал кровли – битумная черепица Окна - металлопластиковые, выполненные по индивидуальному заказу.
Генплан застройки участка / Паспорт проекта 7000 руб / 10000 руб
Инженерный раздел (полный) 125000 руб
Смета на строительство 62500 руб
Теплотехнический расчет материалов стен Бесплатно
Стоимость проекта со незначительнми изменениями 73750 руб
Стоимость проекта со средними изменениями* 92500 руб
Стоимость проекта со значительными изменениями** 97500 руб

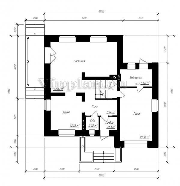
План первого этажа


Гараж — 19,38 кв м
Бойлерная — 6,40 кв м
С/у — 2,02 кв м
Холл — 5,74 кв м
Тамбур — 2,63 кв м
Кухня — 12,23 кв м
Гостиная — 32,20 кв м

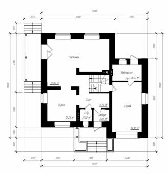
План мансардного этажа


Спальня — 26,18 кв м
Холл — 2,14 кв м
С/у — 10,86 кв м
Спальня — 15,20 кв м
Спальня — 18,15 кв м
Спальня — 12,99 кв м
Одноэтажный дом с мансардой, гаражом и подвалом Одноэтажный дом с мансардой, гаражом и подвалом Одноэтажный дом с мансардой, гаражом и подвалом Одноэтажный дом с мансардой, гаражом и подвалом

Модификации проектов

Внесение изменений и привязка к участку строительства

В любой из проектов от компании VIPplan - Одинцово по вашему желанию могут быть внесены изменения в материалы стен, материалы наружной отделки дома, а также будет произведена адаптация проекта под конкретный регион строительства (с учетом грунтов региона, геологических особенностей вашего участка и местных климатических условий) - БЕСПЛАТНО !!! (кроме проектов со скидкой и проектов наших партнеров).

Любой из проектов, размещенных на сайте odintsovo.vipplan.ru мы можем выполнить из требуемых вам строительных материалов: ячеистый бетон (газобетон, пеноблок), керамоблок, кирпич, шлакоблок, бетонный блок, дерево (брус, клееный брус), каркасная технология (деревянный каркас, металлокаркас (ЛСТК)).

Фасад дома и его наружную отделку так же возможно выполнить с применением различных облицовочных материалов: структурной штукатурки, (с утеплителем и без), сайдингом (пластиковый или металлосайдинг), фиброплитами, кирпича.

 
6 Избранные
проекты

Доставка проектов по России: Москва (Московская область), Санкт-Петербург (Ленинградская область), Краснодар, Ростов-на-Дону, Ставрополь, Сочи, Волгоград, Новосибирск, Белгород, Брянск, Воронеж, Саратов, Хабаровск, Астрахань, Нальчик, Владикавказ, Екатеринбург, Тюмень, Самара, Нижний Новгород, Казань, Пермь, Уфа, Челябинск, Красноярск, Ханты-Мансийск, Иркутск, Курган, Оренбург, Омск, Томск, Барнаул, Новокузнецк, Кемерово, Абакан, Чита, Якутск, Южно-Сахалинск, Петропавловск-Камчатский и страны ближнего зарубежья: Белоруссия, Украина, Казахстан